De basis voor Kwadijkerpark werd gelegd door zorginstelling Prinsenstichting. Zij wilde op een andere manier omgaan met de huisvesting van haar cliënten: mensen met een zware lichamelijke en/of geestelijke beperking. In plaats van hen weg te houden van de samenleving, ondergebracht in een mooi park aan de rand van de stad, wil de Prinsenstichting hen juist onderdeel laten zijn van de maatschappij. Die ambitie leidde tot een plan voor een meer geconcentreerde nieuwbouw voor de zorgcliënten. De vrijkomende ruimte op het terrein in Purmerend kwam daarmee beschikbaar voor reguliere woningbouw. Een voorheen gesloten terrein kon op deze manier worden geopend; een proces dat ook wel ‘omgekeerde integratie’ wordt genoemd. En dat uitstekend past bij hoe AM wil bijdragen aan de ‘Inclusieve stad’.
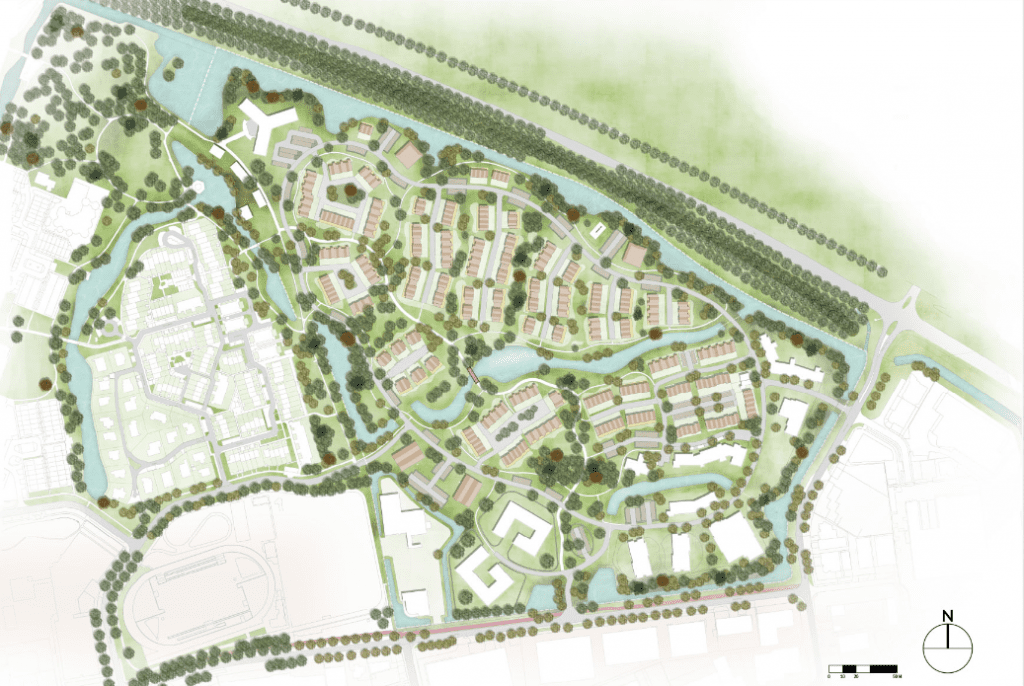
Prinsenstichting, de gemeente Purmerend, woningcorporatie Rochdale en AM gingen over deze insteek in gesprek en ontwikkelden gezamenlijk verder aan het gebiedsconcept waarin een ‘permanent vakantiegevoel’ centraal stond – voor alle bewoners. Dit gebieds-DNA is vervolgens vertaald naar de woningen, de voorzieningen en de inrichting van de openbare ruimte. Kernwaarden daarbij zijn openheid, solidariteit en verbinding – met ‘Hier is wonen mooi voor elkaar’ als pay-off voor de gebiedspositionering. In de architectuur is bijvoorbeeld gekozen voor een Noord-Hollandse stijl die refereert aan de bekende houten huizen in Broek in Waterland. In het landschapsplan is veel aandacht besteed aan het behoud van de bomen en de parkachtige opzet van het terrein. De nieuwbouw van de circa 240 koopwoningen en 100 huurwoningen vindt plaats in de ‘footprint’ van de patiëntenpaviljoens die inmiddels zijn afgebroken. Bewoners krijgen daarbij uitzicht op zowel de intieme woonstraten als het park. Ook worden extra glooiingen in het park aangebracht: wonen in het landschap ten top. Natuurinclusief bouwen en biodiversiteit krijgen eveneens een belangrijke rol toebedeeld in het plan. Dat geldt ook voor duurzaamheid: bodemwarmtepompen zorgen voor verwarming en koeling, zonnepanelen leveren de energie, de woningen worden gasloos gebouwd. Om het aantal parkeerplaatsen terug te brengen, krijgen bewoners deelmobiliteit aangeboden.
Om geïnteresseerden in het plan bekend te maken met de uitgangspunten voor Kwadijkerpark wordt onder meer een trimbaan op het terrein aangelegd. Via QR-codes krijgen sporters zo informatie over de bomen die in het park staan en over de diverse deelplannen die in het gebied worden gerealiseerd.

